LA TECNOLOGIA

LA TECNOLOGIA DEI SERRAMENTI IN PVC BAP
La tecnologia avanzata, abbinata ai concetti costruttivi più moderni, sviluppati su numerose serie, permette la più ampia possibilità di scelta.
- Il fermavetro di design all’interno e le ante semicomplanare o a gradino all’esterno, seguono i moderni canoni del design, rendendo il serramento moderno ed elegante
- I profilipluricamere permettonoun isolamento termico elevatissimo. Raggiungono un coefficiente termico di Uw=0,9W/(m2K).
- Le sezioni dei profili sono maggiorate. Il telaio da 70 mm fino a 82 mm, l’anta da 79 mm fino a 90 mm, danno una maggiore rubustezza al serramento.
- La larghezza dell’anta con sede dei vetri maggiorata, permette l’inserimento di vetrocamera con spessori superiori, tripli vetri e lastre blindate
- Il matriale è ignifugo e antiurto.
- L’esclusiva guarnizione in EPDM Schüco garantisce un’eccellente capacità di ritorno in posizione ed un’ottima elasticità permanente.
- Tutti i profili sono rinforzati internamente con barre in acciaio zincato dello spessore minimo di 2 mm Aumentando robustezza e stabilità del serramento.
- L’esclusiva guarnizione termica sottovetro Schüco, migliora la termica Uw di 0,2 W/m2k. (Opzionale)
CARATTERISTICHE E VALORI PRESENTI IN TUTTI I SERRAMENTI IN PVC BAP
- Tutte le finestre e portafinestre hanno l’apertura ad anta e ribalta su anta principale.
- Microareazione su anta principale.
- Asta e leva di sgancio dei catenaccioli superiori ed inferiori per le tipologie a 2 - 3 - 4 ante.
- Tutti gli angoli sono termosaldati contro eventuali infiltrazioni o cedimenti.
- I vetri sono sigillati da doppia guarnizione, interna ed esterna.
- Telaio con canale di drenaggio acqua.
- Fermavetri stondati.
- PVC ignifugo ed antiurto.
- Le guarnizioni in EPDM garantiscono una tenuta unica nel tempo.
VETROCAMERA ISOLANTE
Composta da due lastre da 4 mm di vetro float divise da un'intercapedine di 15 mm riempita di sali molecolari.
VETROCAMERA TERMOISOLANTE
Uno speciale rivestimento Magnetronico Basso Emissivo lo rende estremamente resistente alla trasmittanza termica, permette un forte abbattimento termico e garantisce un elevato risparmio energetico. Volendo aumentare ulteriormente l’isolamento termico è possibile inserire all’interno dell’intercapedine un gas a bassa conducibilità termica.
VETROCAMERA ANTISFONDAMENTO
Utilizzando vetri laminati, composti da due o più lastre di diversi spessori, incollate una all’altra con materiale intercalare, polivinilburratile (PVB) trasparente ad altissima resistenza, permettono di ottenere qualsiasi grado di sicurezza.
VETROCAMERA FONOISOLANTE E TERMOISOLANTE
Utilizzando particolari tipi di stratificati trattati con resine specifiche e con l’utilizzo di gas inermi inseriti nell’intercapedine del vetrocamera, siamo in grado di soddisfare qualsiasi esigenza di isolamento termico ed acustico.
| Tipologia | Trasmittanza termica U=W/m2k (*) | Abbattimento acustico dB (**) | Peso Kg. al mg. |
|---|---|---|---|
| 3+3/12/4 Basso Emissivo PVB 0,38 + gas Argon | 1.2 | 30 | 25 |
| 3+3/12/3+3 Basso Emissivo PVB 0,38 + gas Argon | 1.2 | 32 | 30 |
| 4+4/12/4 Basso Emissivo PVB 0,38+ gas Argon | 1.2 | 33 | 30 |
| 4/12/4/12/4 due lastre Basso Emissivo + gas Argon | 0.7 | 32 | 30 |
| 4/12/3+3 Acustico Basso Emissivo PVB 0,38 + gas Argon | 1.3 | 37 | 25 |
* Trasmittanza termica: il valore più basso indica il maggiore isolamento termico
** Abbattimento acustico: il valore più alto indica il maggiore abbattimento acustico.
Il valore della trasmittanza termica del singolo serramento potrà essere calcolato solo in funzione del modello, della dimensione del serramento e del vetrocamera scelto.
CARATTERISTICHE
- Trasmittanza termica nodo telaio da U=1,0W/m2K a 0,96W/m2K
- Permeabilità all’aria classe 4 (secondo normativa EN 12207)
- Tenuta all’acqua classe 9A (secondo normativa EN 12208)
- Resistenza al vento classe 5C (secondo normativa EN 12210)
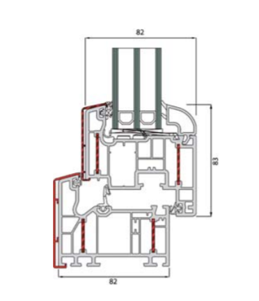
- Profilo a 7 camere con profondità di telaio e anta pari a 82 mm ed eccellenti valori di trasmittanza termica: U fino a 1,0 W/(m2K), con il sistema a 2 guarnizioni (AS), e 0,96 W/(m2K) con il sistema a 3 guarnizioni (MD). In quest’ultimo caso il valore risulta perfettamente idoneo allo standard di casa passiva.
- Due o tre livelli di guarnizioni offrono una protezione ottimale contro infiltrazioni, umidità e rumori esterni. Il sistema è dotato di guarnizioni in EPDM a incollaggio, che garantisce massima tenuta - specialmente nelle zone critiche come gli angoli - ed eccezionali valori di isolamento acustico.
- Le sezioni in vista ridotte (120 mm) evidenziano l’aspetto slanciato degli infissi e favoriscono l’ingresso di luce. L’esclusiva soluzione con anta a scomparsa Total Light, realizzabile solo con finitura TopAlu, consente di ridurre ulteriormente il profilo (109 mm), così da massimizzare la superficie vetrata e consentire la massima illuminazione naturale. L’infisso si presenta esternamente come un’unica cornice, completamente personalizzabile nel colore.
- Design moderno e raffinato: la geometria dell’anta (Classic) e l’elegante tonalità grigia del profilo base rispecchiano le tendenze dell’architettura moderna. Molteplici possibilità di finitura: oltre all’ampia gamma di pellicole decorative in tinta unita e nei toni del legno, le esclusive finiture metallizzate Schüco AutomotiveFinish, le copertine esterne in alluminio della serie Schüco Corona TopAlu e il rivestimento in vero legno Schüco New Essence.
- I rinforzi in acciaio nel telaio e nell’anta soddisfano i massimi requisiti statici.
- Vetri isolanti con spessore da 24 mm a 52 mm.
- Elevato grado di sicurezza garantito da una maggiore profondità strutturale e dalla possibilità di progettazione in classe RC 2.
IL SERRAMENTO BAP
SERIE NEW ESSENCE SCHÜCO
IL VERO LEGNO, IL VERO ECOSOSTENIBILE
LA PERFETTA UNIONE TRA LEGNO E PVC
CARATTERISTICHE
Schüco New Essence è l’esclusivo rivestimento in vero legno disponibile per il sistema Schüco LivIng.
Una lamina di 5 decimi di millimetro in essenza rovere completamente ecosostenibile: la materia prima proviene da foreste rinnovabili, nel pieno rispetto dell’ambiente.
La finitura viene proposta in due colorazioni: All Natural, con sfumature color miele, e White Oak, dall’effetto bianco decapato. Entrambe sono state studiate per essere utilizzate in qualsiasi contesto: risultano perfette in ambienti ultramoderni così come accostate a un arredamento più classico e tradizionale.
Schüco New Essence è un prodotto di qualità, pensato non solo per soddisfare precise esigenze estetiche ma anche severi requisiti tecnici: diversi test di laboratorio hanno certificato la resistenza
del tranciato in rovere a caldo, freddo, umidità, all’invecchiamento accelerato alla luce, ai prodotti di pulizia e a prove di rottura all’angolo.
- Tranciato di vero legno in essenza rovere (5 decimi di millimetro) applicato sul profilo in PVC
- Design elegante e versatile
- Perfetta adesione della finitura al supporto
- Resistenza ai liquidi freddi (norma EN 12720)
- Resistenza ad escursioni termiche secondo la norma UNI 9429: 5 (nessun difetto dopo 15 cicli)
- Resistenza all’invecchiamento accelerato alla luce secondo la norma UNI 15187: 5 (nessun ingiallimento dopo 20 ore di esposizione)
- Idoneità all’impilaggio secondo la norma EN ISO 4622/94
SERIE ORIONE PRODOTTO CON SISTEMA CORONA CT 70 AS SCHÜCO
CARATTERISTICHE
- Trasmittanza termica nodo telaio U=1,3 W/m2K;
- Permeabilità all’aria classe 4 (secondo normativa EN 12207);
- Tenuta all’acqua classe 9A (secondo normativa EN 12208);
- Resistenza al vento classe C5/B5 (secondo normativa EN 12210).
SERIE ORIONE PORTONCINO PRODOTTO CON SISTEMA CORONA CT 70 AS SCHÜCO
CARATTERISTICHE
- Trasmittanza termica nodo telaio U=1,3 W/m2K;
- Permeabilità all’aria classe 4 (secondo normativa EN 12207);
- Penuta all’acqua classe 9A (secondo normativa EN 12208);
- Resistenza al vento classe C5 (secondo normativa EN 12210).
SERIE ANTEA ALLUMINIUM PRODOTTO CON SISTEMA ALU INSIDE SCHÜCO
CARATTERISTICHE
- trasmittenza termica nodo telaio U=0,94 W/m2K;
- permeabilità all’aria classe 4 (secondo normativa EN 12207);
- tenuta all’acqua classe -E 750 (secondo normativa EN 12208);
- resistenza al vento classe C3/B3 (secondo normativa EN 12210).








